Блок выходных трансформаторов
БВТ100-100/30
Паспорт
Техническое описание
Руководство по эксплуатации
ЕРГН.468353.002 ПС

1. НАЗНАЧЕНИЕ
1.1. Блок выходной трансформаторный БВТ100-100/30 предназначен для согласования (понижения) напряжения выходной трансляционной линии усилителя мощности и служит для преобразования сигналов звуковой частоты, поступающих от усилителя мощности и передаваемых в звуковую линию.
1.2. По условиям эксплуатации БВТ100-100/30 относится к климатическому исполнению УХЛ категории 4.2 ГОСТ15150-69.
Степень защиты оболочки – IP41.
1.3. Блок предназначен для работы при температуре от 378 до 313°К (от –5 до +40°С), влажности 80% при температуре +25°С, давлении от 84 до 107 кПа.
2. ОСНОВНЫЕ ТЕХНИЧЕСКИЕ ХАРАКТЕРИСТИКИ
| Наименование параметра | Значение параметра |
| Количество входов | 1 |
| Количество выходов | 1 |
| Максимальная мощность на входе, не менее, Вт | 100 |
| Максимальная мощность на выходе, не менее, Вт | 100 |
| Номинальное напряжение на входе, В | 100 |
| Номинальное напряжение на выходе, В | 30 |
| Сопротивление нагрузки на входе, не менее, Ом | 100 |
| Сопротивление нагрузки на выходе, не менее, Ом | 9 |
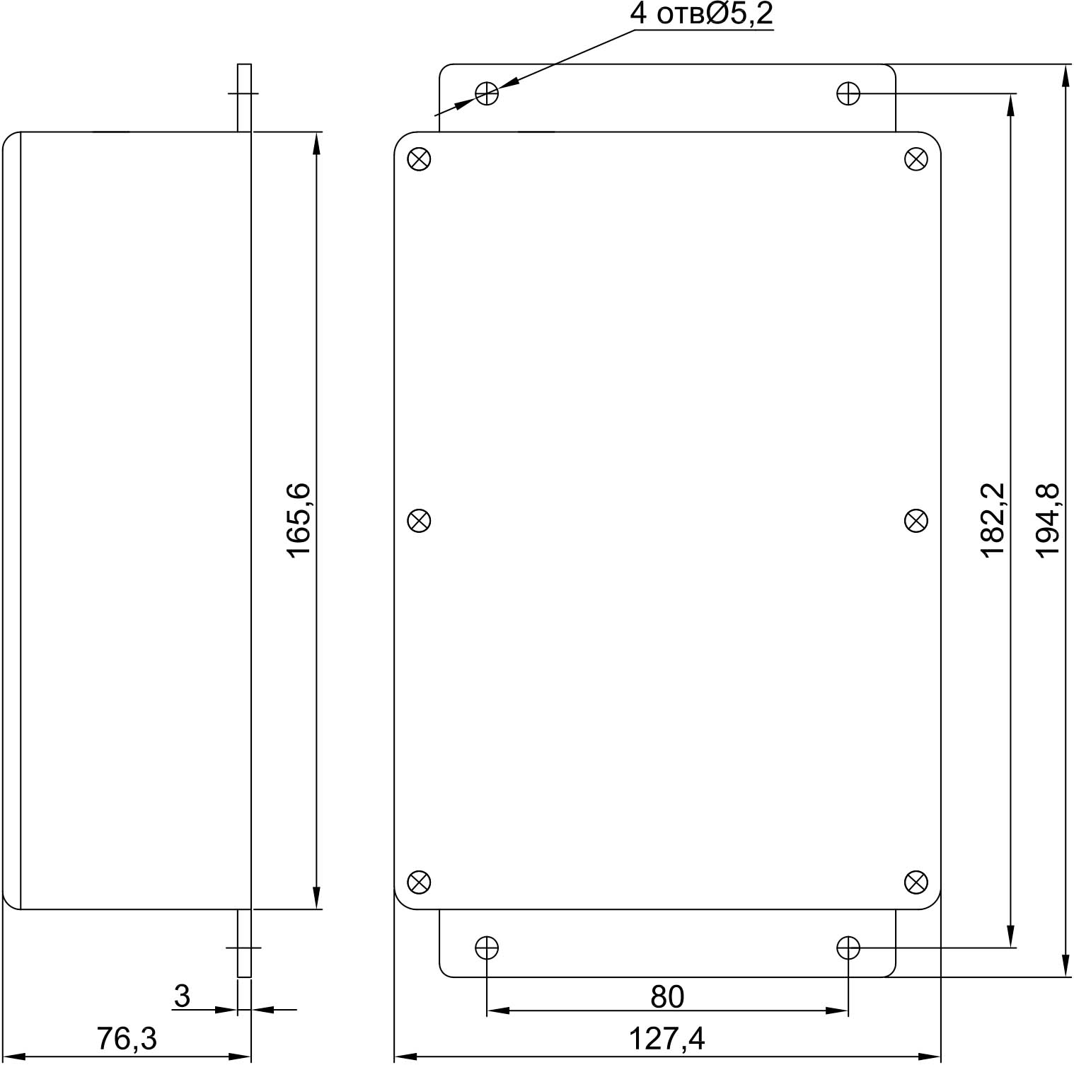
| Габаритные размеры (ВхШхГ), мм | 194,8х127,4х76,3 |
| Вес, не более, кг | 2,5 |
3. КОМПЛЕКТ ПОСТАВКИ
3.1. Блок выходной трансформаторный БВТ100-100/30 ……………………1 шт.
3.2. Паспорт. Техническое описание. Руководство по эксплуатации ………..1 шт.
3.3. Упаковочная тара …………………………………………………………………………..1 шт.
4. КРАТКОЕ ОПИСАНИЕ БЛОКА
4.1. Блок выходной трансформаторный БВТ100-100/30 изготавливается во влагозащищённом корпусе из алюминиевого сплава в навесном исполнении.
4.2. На верхней боковой стенке установлен клеммный разъём «ВХОД 100 В» для подключения двухпроводной звуковой линии напряжением 100 В.
4.3. На противоположной боковой стенке расположен разъём «ВЫХОД 30 В» для подключения звуковой линии напряжением 30 В.
5. УКАЗАНИЯ ПО ТЕХНИКЕ БЕЗОПАСНОСТИ
5.1. В связи с наличием в устройстве опасного для жизни напряжения более 40 В, во избежание несчастных случаев, запрещается вскрывать его до отключения от звуковой сети.
5.2. Ремонт должен производиться специалистом, имеющим группу допуска к работам с электронной аппаратурой не ниже 3.
6. ПОДГОТОВКА К РАБОТЕ
6.1 Освободить прибор от упаковки.
6.2. Установить его на место постоянной эксплуатации. ПРИМЕЧАНИЕ: не допускается размещение устройства около отопительных устройств и в сырых помещениях.
6.3. С помощью омметра произвести проверку выходной линии на отсутствие в ней короткого замыкания и соединения её с металлоконструкциями объекта.
6.4. Произвести монтаж блока. Для этого к клеммному разъему «ВХОД 100 В» БВТ100-100/30 подсоединить линию напряжением 100 В, а к клеммному разъему «ВЫХОД 30В» – линию напряжением 30В.
6.5. После включения питания всего комплекса аппаратуры и подачи звукового сигнала от источников информации – блок готов к работе.
6.6. По окончании работы, нажав кнопку «СЕТЬ» на каждом из совместно работающих приборов, отключить их от сети электропитания.
7. ТРАНСПОРТИРОВАНИЕ И ХРАНЕНИЕ
7.1. Транспортирование изделия должно производиться железнодорожным, воздушным (в герметизированных отсеках) или автомобильным транспортом.
7.2. В случае кратковременного транспортирования на открытых платформах или на машине тара с изделием должна быть накрыта брезентом.
7.3. Изделие должно храниться в складских помещениях, защищающих изделие от воздействия атмосферных осадков, на стеллажах или в упаковке, при отсутствии в воздухе паров кислот, щелочей и других агрессивных примесей.
7.4. В складских помещениях, где хранятся изделия, должна обеспечиваться температура от 278 до 313°К (от +5 до +40°С), относительная влажность воздуха не должна превышать 80%.
7.5. В случае хранения изделия на складе более 2-х лет необходимо производить включение его в сеть и работу в течение не менее 30 мин. каждые 6 месяцев хранения.
8. ГАРАНТИЙНЫЕ ОБЯЗАТЕЛЬСТВА
8.1. Изготовителем гарантируется работоспособность оборудования при соблюдении потребителем условий эксплуатации.
8.2. Гарантийный срок хранения устройства – 2 года со дня изготовления.
8.3. Гарантийный срок эксплуатации – 12 месяцев со дня получения потребителем в пределах гарантийного срока хранения.
8.4. Изготовитель обязан в течении гарантийного срока безвозмездно ремонтировать изделие при соблюдении потребителем правил хранения изделия и его эксплуатации. При отказе изделия по вине пользователя ремонт производится за его счёт.
9. СВИДЕТЕЛЬСТВО О ПРИЁМКЕ
Блок выходной трансформаторный БВТ100-100/30 принят в соответствии с техническими условиями ЕГРН.468353.002 ТУ и признан годным к эксплуатации.
М.П.
Дата выпуска_______________________
Представитель ОТК__________________
10. ПРЕДПРИЯТИЕ-ИЗГОТОВИТЕЛЬ И ЕГО АДРЕС
ООО «Компания Эрвиком», 198095, г. Санкт-Петербург, ул. Швецова, д. 23, лит.Б
Тел./факс: (812) 468-02-15; sound@ervikom.ru; www.ervikom.ru
ГАБАРИТНЫЕ И УСТАНОВОЧНЫЕ РАЗМЕРЫ БВТ100-100/30





